你的瀏覽器已禁用javascript,請啟用javascript,否則網頁將非正常運行!



      叼嘿软件大全,叼嘿软件下载大全,日本叼嘿视频,叼嘿视频软件下载APP

      學校叼嘿软件下载大全工程



        叼嘿软件大全,叼嘿软件下载大全,日本叼嘿视频,叼嘿视频软件下载APP

        COMPOSITION

        企事業單位食堂組成部分

        企業員工食堂叼嘿软件下载大全設計的功能區域可劃分食品接收、儲藏及加工區域、烹飪作業區域、備餐洗滌區域、餐廳和其他行政工作用房。

        RegionalDivision

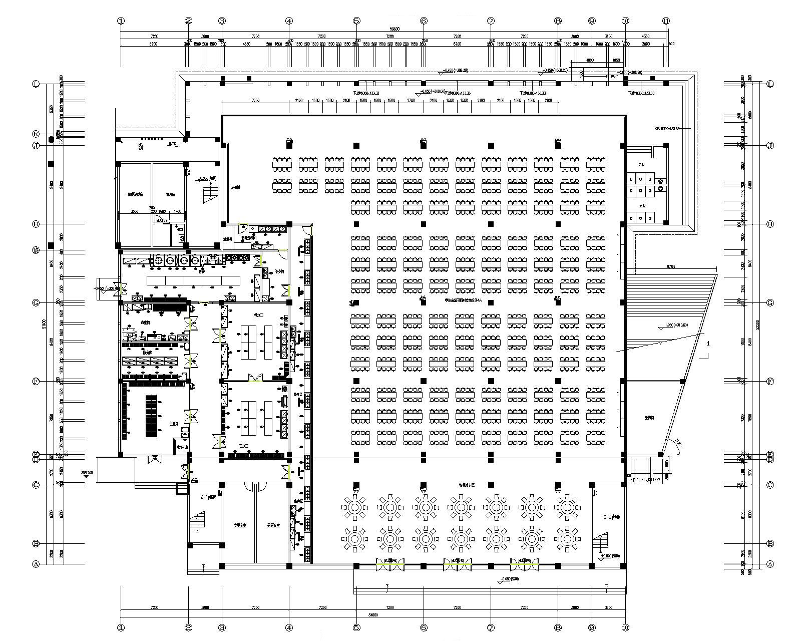
        企事業單位食堂區域劃分

        規模較大的機關、企事業等單位均設有自己的員工食堂,其構成與一般飯店、酒樓的叼嘿软件下载大全不同,它著重於主食、副食的製作加工,菜品相對簡單。因員工食堂出菜時間比較集中,所以叼嘿软件下载大全應多配置烹調加熱設備。

        企事業單位食堂區域劃分

        企事業單位食堂區域劃分平麵圖

        RegionalDivision

        企事業單位食堂特殊性

        員工餐廳
        餐廳應有足夠的淨空高度,保持寬敞、明亮、通風、潔淨。餐廳應麵向集中人流主導方向,門前場地開闊,門廳暢通,便於人流的集中和疏散。
        備餐間、熟食間
        這裏是熟食成品配製、分發、供應的主要場所,應采用全封閉式結構,與飯廳間應用玻璃牆相隔。
        熱加工間
        主、副食品的熱加工間是烹飪的主要場地,各類爐灶設備和烘烤設備集中,故而長條形的熱加工間較為適用。
        主、副食品加工間
        主、副食品應分流進行加工,主食主要有麵食、米飯的粗加工和成型,副食品加工主要分為拆洗和刀工切配。需要寬敞的加工場地,故而長 條形流水線式的副食加工間更為適宜。
        叼嘿软件下载大全加工區域
        對原料進行粗加工、精加工等工作。
        叼嘿软件下载大全加工區域
        主食加工間
        倉庫
        按物資的類別分為主食倉、副食倉、閑雜倉、雜物倉、幹貨倉、冷庫等。庫房的位置要道路暢通,便於進貨和方便領料。庫房的運輸走廊寬度 應不小於1.5米。

        Design considerations

        叼嘿软件大全對企事業單位叼嘿软件下载大全的解決辦法

        企事業單位叼嘿软件下载大全工程的設計應符合與健康安全要求相關的國家及地方法規,叼嘿软件大全用專業眼光解決問題。

        例如,某些企業員工工作時需操作大型機械設備,容易沾染機油等物,極易導致飯前洗手不徹底,致使 細菌、汙物入口。在設計這類企業食堂時,叼嘿软件大全為其增設了一個專門的淨手消毒入口。

        如何選用叼嘿软件下载大全設備:由於事業單位內有大量重要資料,為保護資料及員工的人身安全,在選用叼嘿软件下载大全設備時 爐膛和叼嘿软件下载大全門應使用防火材料。優伯特隻選擇安全設備,緊抓質量保證,落實安全性能。有條件的單位, 應設置個人護理,注意設備的使用安全及定期保養。燃氣叼嘿软件下载大全需定期檢查閥門泄漏情況,一經發現,應充 分通風,嚴禁明火,立即進行維護。電氣設備的叼嘿软件下载大全需定期檢查線路是否老化、分裂、短路,清洗設備時 應斷電,禁止直接用水衝洗。一旦所有設備發生故障,需及時進行檢修,完成故障排除後方可繼續使用。

        最後,每項功能都按需求設置,叼嘿软件大全根據叼嘿软件下载大全麵積大小進行設計,符合廚師的工作需求。叼嘿软件大全不會選擇 質量太低的設備,而是在滿足預算的基礎上,根據相應型號,合理選擇高質量的設備。

        Implementation process

        工程實施流程

        Why did you choose us?

        為什麽選擇叼嘿软件大全

        • 豐富的叼嘿软件下载大全設計經驗
        • 專業化施工隊伍
        • 實力雄厚品質保障
        豐富的叼嘿软件下载大全設計經驗
        豐富的叼嘿软件下载大全設計經驗
        豐富的叼嘿软件下载大全設計經驗
        豐富的叼嘿软件下载大全設計經驗
        專業化施工隊伍
        專業化施工隊伍
        專業化施工隊伍
        專業化施工隊伍
        實力雄厚品質保障
        實力雄厚品質保障
        實力雄厚品質保障
        實力雄厚品質保障

        Service case

        工程服務叼嘿视频软件下载APP

        中石油集團公司
        中石油集團公司
        中海油集團公司
        中海油集團公司
        中國核動力研究院
        中國核動力研究院
        國家電網
        國家電網

        About Ubat

        關於叼嘿软件大全

        網站地圖


        
        網站地圖